您现在的位置:
首页
>
不动产登记
>
不动产权籍调查成果公告公示
> 东城不动产权籍调查成果公告公示
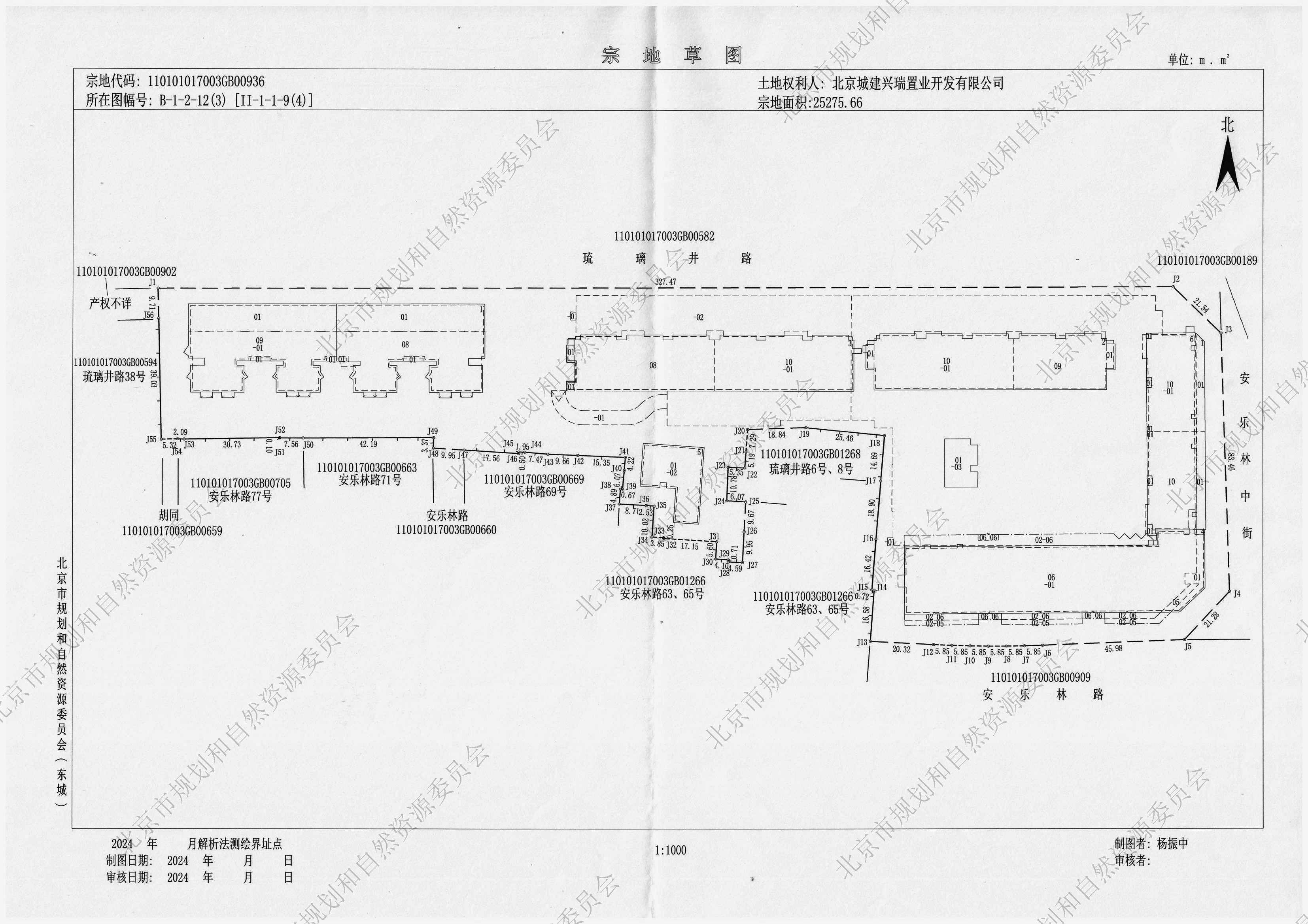
不动产地籍调查结果公告(东城区琉璃井路2号院、4号院)
日期:
2024-10-23 09:31
来源:
北京市规划和自然资源委员会东城分局
字号:
大
中
小
分享:
扫一扫在手机打开当前页
关闭
X
政务公开
<
政务服务
<
政民互动
<
城乡规划
<
自然资源管理
<
不动产登记
<
勘察设计
<
测绘地理信息
<
标准管理
<