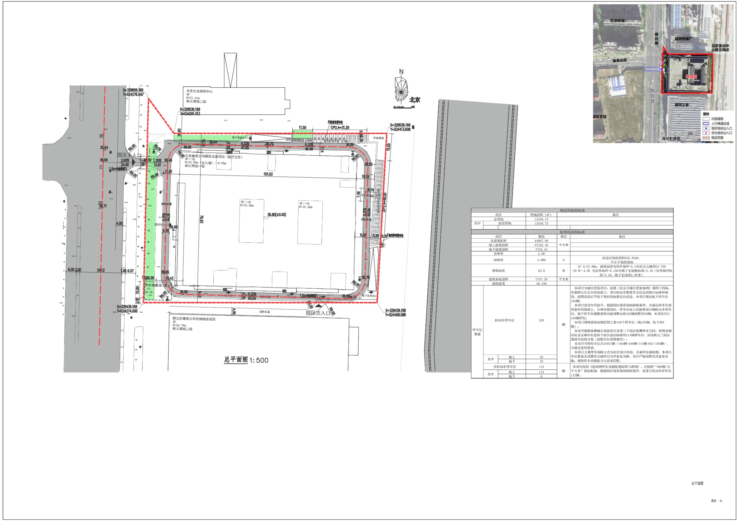
2025年9月28日至10月13日,我局对北京煤炭公司顺西北路项目方案进行了现场和网上公示,公示期7个工作日,公示期间未收到反馈意见。按照相关法律法规要求,现将上述建设工程设计方案总平面图予以公布,公布期限自即日起至全部建设项目建成后通过规划核验之日止。本项目各项技术经济指标以建设工程规划许可证最终审批为准。
特此通告。

附件:北京煤炭公司顺西北路项目建设工程设计方案总平面图
扫一扫在手机打开当前页
2025年9月28日至10月13日,我局对北京煤炭公司顺西北路项目方案进行了现场和网上公示,公示期7个工作日,公示期间未收到反馈意见。按照相关法律法规要求,现将上述建设工程设计方案总平面图予以公布,公布期限自即日起至全部建设项目建成后通过规划核验之日止。本项目各项技术经济指标以建设工程规划许可证最终审批为准。
特此通告。

附件:北京煤炭公司顺西北路项目建设工程设计方案总平面图